(495) 984-74-92
(495) 226-51-87
info@xiron.ru
Telegram - Wa
Главная
Техническая информация
Ледовый каток

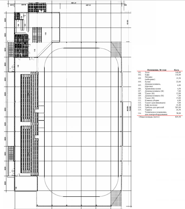
Список оборудования катка

Список оборудования катка

Арена

  • Борт с плексигласом
  • Страховочные сетки
  • Водяной шланг (и)
  • Машина для заливки льда
  • Станок для обработки края
  • Оскрёбщик снега
  • Тележка для инструментов
  • Инструменты (сверлильный станок, ключи для труб, разводные ключи, отвертки и пр.)
  • Ворота (4 шт.)
  • Подъемник (для замены ламп) Таймер + табло Часы
  • Звуковоспроизводящая система
  • Носилки + аптечка первой помощи
  • Скамейки (для игроков, штрафников, оштрафованных на время)
  • Покрытия на лед (для не-ледовых мероприятий)
  • Резиновые маты

Раздевалки со шкафчиками

  • Скамейки
  • Шкафчики / крючки для одежды или вешалки
  • Стойки для клюшек
  • Зеркала
  • Мусорные корзины
  • Резиновые маты

Служба общественного катания

  • Прокатные коньки + стеллажи
  • Шкафчики
  • Вешалки
  • Резиновые маты
  • Станок для заточки лезвий

Служба уборки

  • Щетки
  • Половые швабры
  • Очиститель высокого давления
  • Пылесос
  • Машина для мытья полов
  • Машина для натирки полов
  • Стиральная машина

Кафетерий

  • Духовка
  • Холодильник с морозильной камерой
  • Микроволновая печь
  • Прилавок
  • Столы
  • Стулья
  • Наборы посуды (тарелки, вилки, ложки и пр.)
Список оборудования катка

Список оборудования катка

Список оборудования катка

 

"Добавить комментарий"


"Обновить"

<< Правила ИИХФ - для ледовых площадок катков

 

Menu