(495) 984-74-92
(495) 226-51-87
info@xiron.ru
Telegram - Wa
Главная
Техническая информация
Руководство для монтажников

Осушение компрессора

Осушение компрессора

В некоторых случаях возникает необходимость ремонта влажного компрессора в цеху и выбора способа ремонта. Желаемый результат может дать способ, описанный ниже, при условии его строгого соблюдения:
  • Удалите из компрессора масло.
  • Залейте внутрь компрессора негорючий хладагент под низким давлением (0,5—1 л) или растворитель.
  • Закройте компрессор с хладагентом (растворителем) и потрясите его во всех плоскостях, чтобы хладагент вошел в контакт со всеми внутренними поверхностями.
  • Слейте хладагент, как положено.
  • Повторите операцию еще раз или два раза и убедитесь, что в компрессоре не осталась масла.
  • Продуйте компрессор сухим азотом.
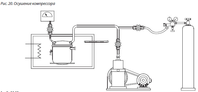
  • Соедините компрессор с вакуумным насосом и газовым баллоном, как показано на рисунке 20.
  • Закройте нагнетательный патрубок. Соединения трубопроводов с всасывающим патрубком компрессора должны быть герметичными. Герметизация достигается пайкой мест соединений или использованием подходящих вакуумных шлангов.

Перед вакуумированием доведите температуру компрессора до 115—130°С. Начните вакуумирование и доведите давление в компрессоре до 0,2 мбар или ниже. Требуемое разрежение достигается только при герметичных соединениях. Содержание влаги в компрессоре зависит от времени вакуумирования. Если компрессор сильно загрязнен, заполнение системы сухим азотом при атмосферном давлении с последующей его откачкой, проделанное несколько раз, резко повысит эффективность осушения.
  • Закройте патрубок, соединенный с вакуумным насосом, и выровняйте давление в системе.
  • Поддерживайте вакуум при данной температуре приблизительно 4 часа.
  • По окончании процесса осушения заполните компрессор сухим азотом под атмосферным давлением и загерметизируйте патрубки компресора.
  • Заправьте компрессор маслом заданного типа в заданном количестве и установите его в систему охлаждения.
Осушение компрессора
 

"Добавить комментарий"


"Обновить"

<< Системы, содержащие влагу   Потеря хладагента >>

 

Menu